Jubiläum 8./9.11.

Wir bedanken uns ganz herzlich bei allen teilnehmenden KünstlerInnen und den unzähligen unterstützenden Händen, Unternehmungen und Vereinen, die zum Gelingen der Jubiläumsbesetzung am 8./9.11.2025 beigetragen haben:

Frieda Gustavs, Christiane Kolbe von der Ankleide, Verena Klette von rentitent.juweliere, Claudia Küster, Josef, Vince, Elija, Janne von Feed the Flame, Kalle Kalima, Oliver Potratz und Oliver Steidle von Klima Kalima, Maki Shimizu, André Hatting, Everest Girard, Bertram Reinecke und Gunter Lampe, Peter Conrad Beyer, Sebastian Braun, Hansestadt Stralsund Amt für Kultur, Weltkulturerbe und Medien, Sound Project Stralsund und Holger Kanehl, Hof Zandershagen, Kaffee Monopol, Freizeittreff Bleicheneck mit dem Tresenteam, Weiw Verlag, Jugendsozialarbeit des SPEICHER_Leute e.V., Jugendkunstschule Vorpommern Rügen, Landkreis Vorpommern-Rügen, Jakob vom Kreisdiakonischen Werk e.V., Museumspädagogik des Stralsund Museums, Klatschmohnverlag, Dirk Lampe, Christian Rödel, Helene, Johanna, Pascal, Annouk, Konstantin, Isa Schieche, Sandra Bergemann, Henning Wagenbreth, Alfred Mücke, Jascha Schwarz, Jason Röser und Luke Carter

--------------

25 Jahre SPEICHER mit Kunst besetzt

Der SPEICHER_Leute e.V. hat am 8./9. November 2000 den Speicher am Katharinenberg in Stralsund mit Kunst besetzt. Dieses Jahr feiern wir also ein Jubiläum. Ein Vierteljahrhundert voller Projekte, Veranstaltungen, Menschen und Maschinen. Der SPEICHER ist VIERTEL voll!

Programm als PDF

Programm

11:00 Uhr Eröffnung des Jubiläumswochenende
Wir zeigen in der Atelieretage eine Ausstellung von Arbeiten von Speicherleuten im weitesten Sinne und im Hofdurchgang blickt ein Zeitstrahl vor und zurück.

12:00 Uhr Konzert und Buchvorstellung
„diepvriesfruit — 14 Songs“ mit Frieda Gustavs und Neuauflage des Buches „Der Tag an dem Corinne in unsere Stadt kam“

ab 13:00 Uhr Druckworkshops und Spiele
Mini-Druckworkshops verschiedener Drucktechniken: Tiefdruck, Textildruck oder Pappelplattendruck
Spiele: O-Spiel von Isa Schieche oder Kartenspiele, z.B das FKK-Spiel von Luke Carter

Die Zeichnerin Maki Shimizu bringt ihr Cello mit.

19:00 Modenschau Ankleide
mit Schmuck von Verena Klette und Claudia Küster
Einlass: 18:30 Uhr mit freundlicher Unterstützung von SoundProjekt Stralsund
und Lampenstudio Rotwang

Höhepunkt JAZZ Konzert Klima Kalima

19:30: Einlass 20:00: Support Feed the Flame
21:00: Klima Kalima

ab 23:00 Uhr Drucknacht & Kurzfilm-Nacht
Museumswerkstatt Spielkartenfabrik und Atelier Etage 2.Stock
Freies Arbeiten mit Gesprächen und Getränken

Filmnacht
Seminarraum im 3.Stock
Kurzfilmblock "Individuum und Kollektiv" -
2 experimentelle Kurzfilme
Peter Beyer Peter Conrad Beyer
DE DENTRO, 10 Minuten, Experimentalfilm
EINS ZU EINS QUADRAT, 8 Minuten, Experimentalfilm
Danach Kurzfilmperlen aus 25 Jahren SPEICHER

11:00 Sonntagsfrühstück
Café 1. OG

und Textgelage
mit André Hatting, Everest Girard, Bertram Reinecke und Gunter Lampe
Mit freundlicher Unterstützung vom Kaffee Monopol und dem Hof Zandershagen

____________________________________

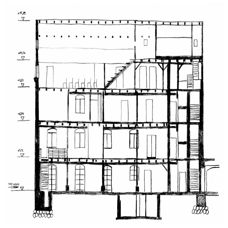
Der Verein macht seit über 30 Jahren Jugendarbeit mit den Mitteln der Kunst, ohne dabei für Jugendliche »Schutzräume« zu schaffen. Der Speicher ein Kulturort für alle. Schwerpunkt sind die grafischen Drucktechniken. Die Spielkartenfabrik im Erdgeschoss ist eine Museumswerkstatt, in der das Kulturerbe des Buchdrucks aktiv gelebt und die Tradition der Stralsunder Spielkarten weitergeführt wird. In der Atelieretage ist Raum für künstlerische Projekte und Workshops. Das mittwochs stattfindende Offene Atelier ist Ursprung des Vereins und Grundlage des kulturellen Zentrums. Die Nutzung von Räumen und Material wird für alle Vereinsangebote über die Speicherkarte organisiert. Grade sind wir von unserem jährlichen Druckfestival Feste Drucken — diesmal auf der Insel Hiddensee — zurück und bereiten das Jubiläumswochenende vor. Am Sonnabend 8.11. wird ab 11 Uhr das Haus neu besetzt auf allen Etagen gefeiert. Höhepunkt ist das Konzert der Jazz-Band »Klima Kalima«, die nach der Besetzung eines ihrer ersten Konzerte im SPEICHER gegeben hatte und mittlerweile durch die Welt tourt. Natürlich wird die ganze Nacht durch gedruckt. Kommt alle und plant mit uns die Zukunft. In einem Dreivierteljahrhundert wird der SPEICHER ganz voll sein!